選べる3つの販売図面

お客様の物件の魅力を最大限に引き出すための、
目的に合わせた3つのプラン。
お客様の物件の魅力を
最大限に引き出すための
目的に合わせた3つのプラン。
シンプルプラン サンプル
SAMPLE
シンプル
情報量重視のデザインです。各部屋の写真を
多く掲載でき、物件の情報を隅々まで詳しく
載せられるため、物件の魅力を最大限に伝え
ることができます。
ベーシックプラン サンプル
SAMPLE
ベーシック
明快さ重視のデザインです。各セクションの
情報が完結かつわかりやすくまとまっており、
購入希望者に必要な情報を迷わず伝えること
ができる、定番のレイアウトです。
ロイヤルプラン サンプル
SAMPLE
ロイヤル
高級感重視のデザインです。洗練された
レイアウトで、写真を大きく配置すること
で、物件にワンランク上の高級感を演出
し、印象づけることができます。
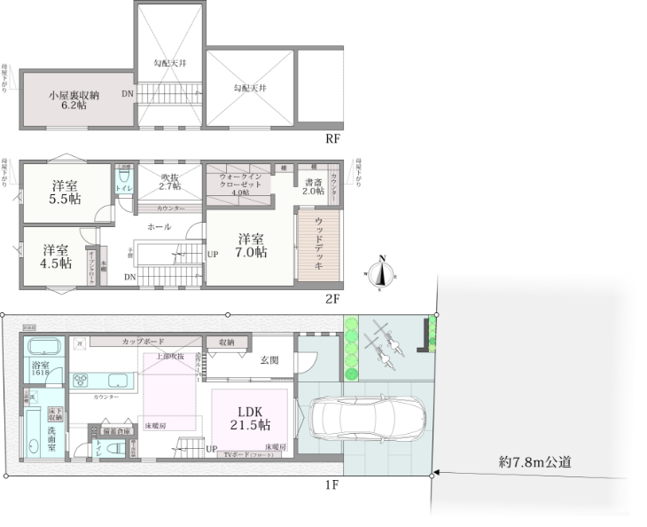
間取図・区画図  作成例
間取図 作成例
SAMPLE
間取図
全居室の広さと配置がひと目で
わかります。家具の配置イメージ
がしやすくなります。
区画図 作成例
SAMPLE
区画図
敷地の形状と、建物や駐車場の
正確な配置を示しています。日当
たりや隣接状況の確認に便利です。
区画図入りの間取図 作成例
SAMPLE
区画図入りの間取図
間取りと敷地全体を同時に確認
できます。建物の配置や庭のスペー
スを含めた、総合的なイメージ
把握に最適です。
シンプル
情報量重視のデザインです。各部屋の写真を多く掲載でき、物件の情報を隅々まで詳しく載せられるため、物件の魅力を最大限に伝えることができます。
1)
SAMPLE
ベーシック
明快さ重視のデザインです。各セクションの情報が完結かつわかりやすくまとまっており、購入希望者に必要な情報を迷わず伝えることができる、定番のレイアウトです。
1)
SAMPLE
ロイヤル
高級感重視のデザインです。洗練されたレイアウトで、写真を大きく配置することで、物件にワンランク上の高級感を演出し、印象づけることができます。
1)
SAMPLE
間取図・区間図
作成例
全居室の広さと配置がひと目でわかります。家具の配置イメージがしやすくなります。
間取図
4_ (1)

SAMPLE

敷地の形状と、建物や駐車場の正確な配置を示しています。日当たりや隣接状況の確認に便利です。
区画図
4_
SAMPLE
間取りと敷地全体を同時に確認できます。建物の配置や庭のスペースを含めた、総合的なイメージ把握に最適です。
区画図入りの間取図
4_
SAMPLE